全自動超低湿保管庫スーパードライ「M-Tempシリーズ」
全自動超低湿保管庫
スーパードライ
「M-Tempシリーズ」
SDM-1204M2 ※3月21日発売
日本製電子ドライユニットの超低湿性能と
加温強制対流(庫内循環エアーサイクル)の
相乗効果で優れた脱湿性能
最低到達湿度:0〜1%RH
庫内温度:Max60℃
日本製電子ドライユニットの超低湿性能と
加温強制対流(庫内循環エアーサイクル)の
相乗効果で優れた脱湿性能
最低到達湿度:0〜1%RH
庫内温度:Max60℃
品質と信頼の
日本製電子ドライユニット
品質と信頼の
日本製 電子ドライユニット
- Max60℃までの加温を可能にした半導体脱湿に高い効果を発揮する超低湿保管庫です。
- 生産性向上(短時間乾燥)と品質向上(脱湿効果UP)に優れ、高温(100℃以上)ベーキング省略により作業性が向上します。
- 生産工程における不良率を大幅に低減する実装工程の必需品です。
【標準仕様】
- 静電容量式センサーと高精度マイコン制御【特許 第5449309号】により
高精度で検知した庫内湿度を1%刻みで安定制御 - 扉を開けずに1%刻みで湿度設定が可能なデジタルパネルを採用
- 6時間毎に加熱再生する連続運転モードを搭載
- プリント基板管理基準 IPC-1602に準拠
- ICパッケージ管理基準 IPC/JEDEC J-STD-033Dに準拠
- 1MΩのアース線を装備
- 導電性焼付塗装(本体、棚)
- 静電気対策はESD-IEC61340-5-1に準拠
- 部品は欧州RoHS2に対応
【各部名称】
- A温風パネル
- B温湿度センサー
静電容量式センサーの採用により、従来の抵抗式に比べて、さらに正確な庫内湿度を検知します。
- C鍵
- Dデジタルパネル(日本製)
-
扉を開けずに庫内湿度を設定可能。温度・湿度の表示をワンタッチで切り替えられます。
- E棚板
-
導電性焼付塗装のスチール製です。
通気孔が開いています。 - F電子ドライユニット(日本製)
-
強力電子ドライユニットを2台搭載し、1台が加熱再生中のときはもう1台が除湿を維持します。安心の3年間無償保証。
- G制御ボックス
- Hキャスター
-
ポリウレタン製の自在キャスターです。
【性能試験】
【製品仕様】
| 型名 | SDM-1204M2 |
| 最低到達湿度 | 0〜1%RH(外気温度25℃、外気湿度50%RH、無負荷時) |
| 最高到達湿度 | 60℃(外気温度25℃、無負荷時) 棚板中段中央を基準に各段最大±5℃の誤差が生じる可能性あり。 |
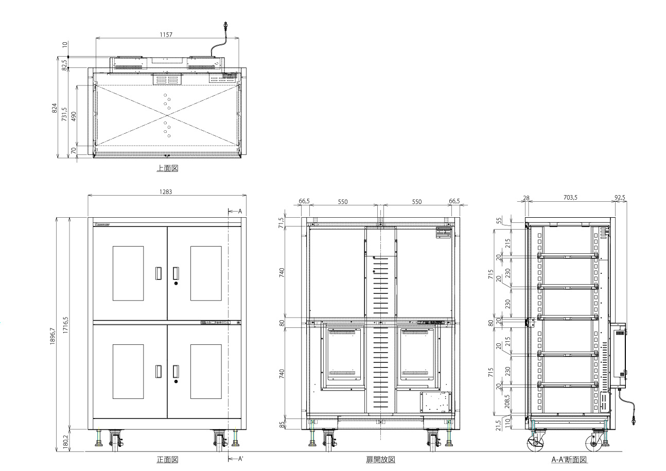
| 外寸 W×H×D | 1283×1897×824mm |
| 内寸 W×H×D | 1198×1548×658mm |
| 内容量 | 1220ℓ |
| 重量 | 240kg |
| 消費電力 | 平均消費電力:458.7W 消費電力量:452.6kWh/月 |
| 定格電圧 | AC100V(50/60Hz) |
| プラグ形状 | 3Pプラグ |
| 製品材質 (製品本体・棚) |
スチール(導電性焼付塗装) |
| 棚 | 寸法:W1157×H20×D490mm(5枚) 耐荷重:100kg/枚(分散荷重) 可変ピッチ:50mm |
| 付属品 | 鍵×2、スペーサー×4 |
| 価格 | オープン |
消費電力は25℃・60%RHの環境条件で、連続運転モードで運転した時の実測値です。
【製品図面】※特注寸法も承っております。
- 記載したデータは代表値であり保証値ではありませんので、ご承知置きください。
【 ご購入に際して ご注意とお願い 】
- 加湿機能はありませんので、外気が低湿度の時は設定湿度より低くなる場合がございます。
- 掲載商品の部品や製品は改良などに伴い、予告なく仕様を変更させていただく場合がございます。
- 天災による被害の補償や収納品の保証は応じかねますのでご了承ください。
- 当社からお客様への直送は「車上渡し(混載便)」となります。
- 沖縄・離島・遠島は運賃が別途必要となります。
- 配送時間のご希望や搬入をご希望の場合は別途費用が発生しますので販売店様と十分にお打ち合わせください。
- 運送中の事故の保険適用は1週間以内です。 お買上製品受取後はすぐに開梱の上、製品の確認をしてください。
- 取扱説明書(保証書付)は大切に保管してください。
- 正しく安全にお使いいただくために、ご使用前に必ず取扱説明書をお読みください。
弊社出荷前にオプション品取付けご用命の際には取付け費用が発生いたします。
【対応オプション】(オープン価格)
スチール棚
切り欠きなし
導電性焼付塗装です。
リールラック
仕切り18本
仕切りはリールの厚みに合わせて脱着可能。リールの直径は180〜380mmに対応。
リールラック
仕切り43本
仕切りはリールの厚みに合わせて脱着可能。リールの直径は180〜380mmに対応。
アジャスター
4本セット
耐荷重900kg、M径M20
納品後にご希望の場合はご相談ください。
アジャスター押さえ金具
4個セット
アンカーボルトで床に固定できます。
N2自動コントローラー
N2ガスの流量計と時間を制御。既存のN2ガス設備のランニングコストを削減可能。
本体製品納品後のご注文はお受けできませんので、製品発注時にご注文ください。
N2流量計(RK1150)
流量調整バルブ付きです。
毎分0〜25L・耐圧0.5Ma
本体製品納品後のご注文はお受けできませんので、製品発注時にご注文ください。
リストストラップ
接続端子セット
作業者の静電気帯電を速やかに逃します。
本体製品納品後のご注文はお受けできませんので、製品発注時にご注文ください。



